PROPERTY
新築戸建
#東京23区
2線利用で軽快アクセス 世田谷梅丘の新築邸宅
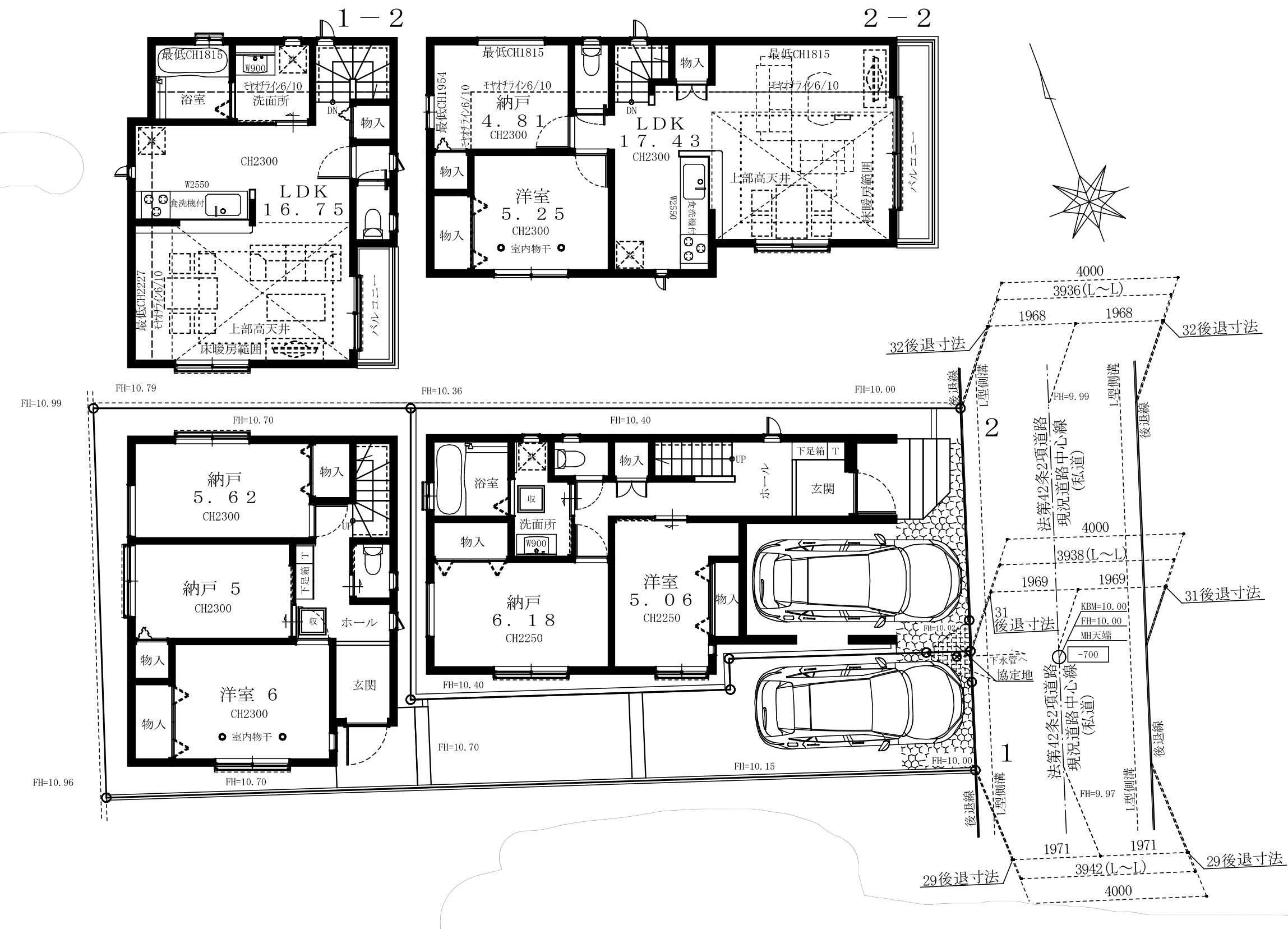
間取り図
物件概要
-
価格
1億998万円~1億1998万円
-
所在地
東京都世田谷区梅丘2
-
アクセス
東急世田谷線「宮の坂」歩8分
小田急線「豪徳寺」歩10分
東急世田谷線「山下」歩11分 -
土地面積
76.68m2~90.66m2
-
建物面積
81.55m2~104.75m2
-
建物構造
木造2階・地下0階建(軸組工法)
-
土地権利
所有権
-
地目
宅地
-
都市計画
市街化区域
-
用途地域
第一種低層住居専用地域
-
建ぺい率
60%
-
容積率
150%
-
その他法制限
景観法による規制有、高度地区、準防火地域、高さ最高限度有
-
生活設備
公営水道、本下水、都市ガス
-
完成予定
2026年2月予定
-
現状
建築中
-
入居予定
2026年3月予定
-
接道状況
道路幅:4m、コンクリート舗装
-
備考
建築確認番号:第25UDI1K建01306号他
FOR MEMBER
会員限定公開物件
市場未公開の厳選物件を会員様向けに限定公開しております
ぜひこの機会に無料会員登録いただき、お早めにご確認ください


担当者コメント
※現地ご見学可能です!モデルハウスご見学頂けます!※ 世田谷区梅丘二丁目に誕生する、2階建新築邸宅。静謐な邸宅街に、耐震等級3を標準装備した安心の構造美が映えます。東急世田谷線と小田急線のマルチアクセスで、都心への軽快なフットワークを実現。 室内は、家事の負担を軽減する食洗機、雨の日も安心の室内物干し、冬の快適性を支えるリビング床暖房など、高品質な設備が標準搭載されています。さらに、未来を見据え太陽光発電パネルを設置。環境にも家計にも優しいエコロジーな住まいです。 「永住の安心」と「日常の快適」を両立した、世田谷の次代を築くハイスペックレジデンス。